Über uns
Expertise
Auftragskonstruktion
Lieferant
Beispiele
Handwerk
Industrie
Metalldesign
Eigene Produkte
Balkenfussverkleidung
Edelstahl Briefkästen - Sonderanfertigungen
Edelstahl Design- Garderobe
Feuerschale - Firebowl
Kontakt
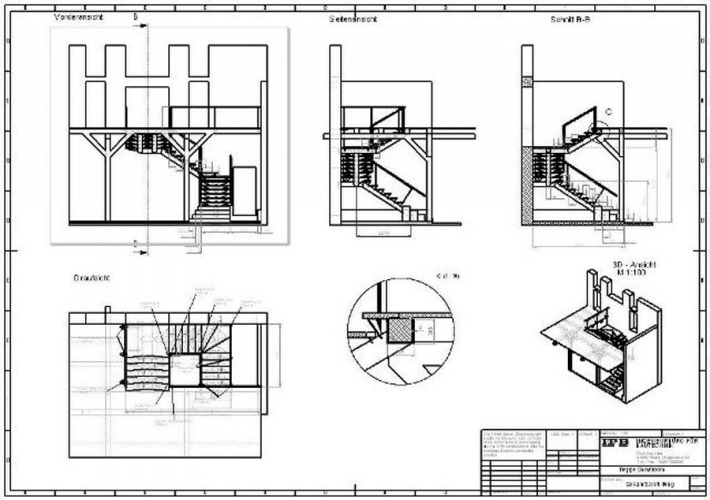
Beispiele für bereits erfolgreich realisierte Projekte im Bereich "Handwerk".
Klicken Sie auf die Bilder, um diese zu vergrößern.
Social Bookmarks - Bitte bookmarken Sie meine Seite bei: